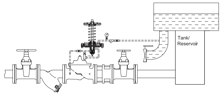
Functions:
• Closes completely at a constant, adjustable top level.
• Opens completely at a constant lower level.
Sample applications:
• Maintaining a reservoir supply closing level at a constant level, without control accessories in the tank.

Good to know! No pilot to install inside the tank!