• Shuts off and opens supply at a constant level controlled by float pilot. • Manual closing and reopening.
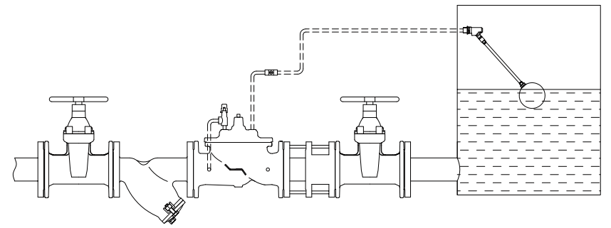
Functions:
• Shuts off and opens supply at a constant level controlled by float pilot.
• Manual closing and reopening.
Applications:
• Maintaining a constant level in a drinking water reservoir without overflowing risks.
F10A ALTITUDE BI LEVEL WITH ALTITUDE PILOT
F10B ON/OFF FLOAT ON/OFF LEVEL WITH FLOAT PILOT
F106 FLOAT MODULATING & SOLENOID ON/OFF LEVEL BY SOLENOID & SECURITY BY FLOAT MODULATING
F200 DOWNSTREAM PRESSURE REDUCING
F300 NON-RETURN VALVE
F400 RATE OF FLOW FLOW LIMITER
F420 RATE OF FLOW & PRESSURE REDUCING FLOW LIMITER & PRESSURE REDUCING
F500 UPSTREAM PRESSURE SUSTAINING/RELIEF
HOME
TEL
MESSAGE
TOP